あやの台 余白が、暮らしを やさしく整えてくれるお家(売買 新築一戸建て) | 橋本市あやの台 | 和歌山県橋本市周辺の不動産のことなら / 新築住宅,中古住宅,土地,マンション / リフォーム,注文建築 和歌山県橋本市 014不動産 丸石木材住宅株式会社

あやの台 余白が、暮らしを やさしく整えてくれるお家 | 橋本市あやの台の不動産物件

“モデルハウスお譲りします”■30坪の開放感■北欧シンプルの心地よさ■玄関土間のある暮らし■家事ラク動線■整う収納計画■将来対応の間取り
【新築一戸建て】 NEW! 新築 オール電化
価格 3,480万円 (税込)
南海電鉄高野線 林間田園都市駅
バス15分 バス停「あやの台南口」 徒歩4分
スマホ表示
物件コード:B01388-000270
所在地 建物面積
土地面積
間取り 築年月
和歌山県橋本市あやの台2丁目 101.84m2
201.41m2
2SLDK 2025/11

物件基本情報

▲1階から2階天井いっぱいに伸びる大きな窓は外観のアクセント
▲キッチンと横並びのダイニングは配膳の動線が短く、家族で料理する時にはダイニングテーブルが作業台にも
物件種目 新築一戸建て
物件名称 あやの台 余白が、暮らしを やさしく整えてくれるお家
所在地 和歌山県橋本市あやの台2丁目
交通
南海電鉄高野線 林間田園都市駅
バス15分 バス停「あやの台南口」 徒歩4分
階数 2階建 (地下0階)
建物構造 木造
建ぺい率/容積率 50% / 100%
駐車場 -
学校 橋本市立あやの台小学校 / 橋本市立隅田中学校
設備・条件
  • 汚水:公共下水
  • 水道:公営水道
  • IHクッキングヒーター
  • コンロ三口
  • システムキッチン
  • オートバス
  • 追い焚き
  • 浴室乾燥機
  • 洗浄便座
  • エアコン
  • TVドアホン
  • 家具・家電付
  • Wクローゼット
  • 室内洗濯機置場
  • オール電化
  • 耐震構造
  • 長期優良住宅
014不動産 丸石木材住宅株式会社
0120-014-065
携帯電話・PHSもご利用になれます。

画像・写真

  • 1階床面積:52.99m2(16.02坪)
    1階床面積:52.99m2(16.02坪)
  • 2階床面積:48.85m2(14.77坪)
    2階床面積:48.85m2(14.77坪)
  • 家具のように空間にとけ込むグラフテクトキッチンは同デザインのカップボードもセット
    家具のように空間にとけ込むグラフテクトキッチンは同デザインのカップボードもセット
  • 土間収納・玄関収納付きのベビーカーもそのまま入れる玄関土間
    土間収納・玄関収納付きのベビーカーもそのまま入れる玄関土間
  • 室内干しが出来るスペース。カウンター付きなのでアイロン掛けもできる
    室内干しが出来るスペース。カウンター付きなのでアイロン掛けもできる
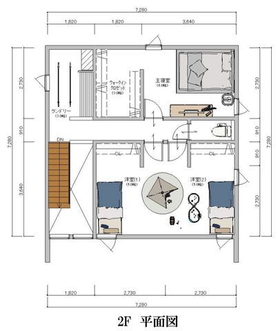
  • 家族の暮らしに合わせて2部屋に間取りを変更できる洋室
    家族の暮らしに合わせて2部屋に間取りを変更できる洋室
  • 睡眠に集中できる6帖の主寝室。ウォークインクローゼット隣接
    睡眠に集中できる6帖の主寝室。ウォークインクローゼット隣接
  • W1200で大人二人が並んで準備ができる広さの独立洗面台は
    W1200で大人二人が並んで準備ができる広さの独立洗面台は
  • 窓ありの1階トイレ。タンクレスでスッキリした空間
    窓ありの1階トイレ。タンクレスでスッキリした空間
  • 2階トイレ。背面はトイレットペーパー等収納できる収納棚付き
    2階トイレ。背面はトイレットペーパー等収納できる収納棚付き
  • 窓なし、浴室乾燥機付きのユニットバス。
    窓なし、浴室乾燥機付きのユニットバス。
  • 西面に接している住宅地内メイン道路
    西面に接している住宅地内メイン道路
  • 駐車場、玄関側に面している東面道路
    駐車場、玄関側に面している東面道路
  • 橋本市立あやの台小学校 徒歩約5分。自転車約2分。車約1分。住宅地内にあるため、車通りも少なく通学も安心! 360m
    橋本市立あやの台小学校 徒歩約5分。自転車約2分。車約1分。住宅地内にあるため、車通りも少なく通学も安心! 360m
  • 橋本市立隅田中学校 徒歩約30分。自転車約10分。車約7分。 2200m
    橋本市立隅田中学校 徒歩約30分。自転車約10分。車約7分。 2200m
  • オー・ストリート橋本彩の台 徒歩約7分。自転車約3分。車約1分。イーストゾーンにはスーパーやゲームセンター等のショッピング・アミューズ店舗あり。ウエストゾーンには飲食店やフィットネスジム等のレジャー…
    オー・ストリート橋本彩の台 徒歩約7分。自転車約3分。車約1分。イーストゾーンにはスーパーやゲームセンター等のショッピング・アミューズ店舗あり。ウエストゾーンには飲食店やフィットネスジム等のレジャー…
  • ムーミン谷こども園 徒歩約2分。自転車約1分。車約1分。住宅地内にあるため、車通りも少なく通園も安心! 160m
    ムーミン谷こども園 徒歩約2分。自転車約1分。車約1分。住宅地内にあるため、車通りも少なく通園も安心! 160m
  • ファミリーマート橋本東インター前店 1000m
    ファミリーマート橋本東インター前店 1000m
  • 在来工法
    在来工法
  • 標準、YKK樹脂サッシ
    標準、YKK樹脂サッシ
  • 標準、断熱材
    標準、断熱材
  • 標準、ガルバリウム鋼板屋根
    標準、ガルバリウム鋼板屋根

周辺地図

地図を表示中...
ストリートビュー未対応エリアです。

物件詳細情報

物件用途 居住用 地目 宅地
間取り詳細 LDK18畳(1F)、洋6畳(2F)、洋5畳(2F)、洋5畳(2F)、S3畳(2F) 都市計画 非線引区域
建物向き 南西 用途地域 第二種低層住居専用地域
土地面積基準 公簿 接道 公道 東 幅員5.2m (接面13.9m)
公道 西 幅員16m (接面12.3m)
土地権利 所有権 私道面積 -
借地条件 - 道路位置指定 -
地代 - 不適合接道 -
建築確認番号 - セットバック -
現況 空家 国土法届出 -
引渡時期 相談 取引態様 売主
オープンハウス 日時:2026年5月1日~5月31日  
設備その他 -
特記事項 高さ最高限度有/宅地造成工事規制区域
備考 -
公開日 2026/05/22 広告有効期限 2026/06/22
電話でお問い合わせ
014不動産 丸石木材住宅株式会社 店舗情報
[所在地] 和歌山県橋本市東家5丁目4番1号
[営業時間] 10:00~18:00 定休日:水曜
0120-014-065
携帯電話・PHSもご利用になれます。