リビングの手前で、汚れも家事もリセットできる家(売買 新築一戸建て) | 橋本市みゆき台 | 和歌山県橋本市周辺の不動産のことなら / 新築住宅,中古住宅,土地,マンション / リフォーム,注文建築 和歌山県橋本市 014不動産 丸石木材住宅株式会社

リビングの手前で、汚れも家事もリセットできる家 | 橋本市みゆき台の不動産物件

SICから洗面、ランドリーを回遊。帰宅後の手洗いと洗濯を一周で完結できる家
【新築一戸建て】 NEW! 新築 オール電化
価格 2,980万円 (税込)
南海電鉄高野線 御幸辻駅 徒歩25分
スマホ表示
物件コード:B01388-000276
所在地 建物面積
土地面積
間取り 築年月
和歌山県橋本市みゆき台 117.58m2
170.45m2
4LDK 2025/05

物件基本情報

▲・2026年3月末撮影・完成予定:5月
▲・21帖のLDK・完成イメージ
物件種目 新築一戸建て
物件名称 リビングの手前で、汚れも家事もリセットできる家
所在地 和歌山県橋本市みゆき台
交通
南海電鉄高野線 御幸辻駅 徒歩25分
階数 2階建 (地下0階)
建物構造 木造
建ぺい率/容積率 50% / 100%
駐車場 -
学校 橋本市立紀見小学校 / 橋本市立紀見東中学校
設備・条件
  • 汚水:公共下水
  • 水道:公営水道
  • 食器洗乾燥機
  • IHクッキングヒーター
  • コンロ三口
  • システムキッチン
  • オートバス
  • 追い焚き
  • 浴室乾燥機
  • 洗浄便座
  • エアコン
  • TVドアホン
  • 家具・家電付
  • 床下収納
  • Wクローゼット
  • 室内洗濯機置場
  • オール電化
  • 長期優良住宅
014不動産 丸石木材住宅株式会社
0120-014-065
携帯電話・PHSもご利用になれます。

画像・写真

  • ・1階床面積:57.96m2(17.53坪
    ・1階床面積:57.96m2(17.53坪
  • ・2階床面積:59.62m2(18.03坪)
    ・2階床面積:59.62m2(18.03坪)
  • ・2階ホール デスクスペース・完成イメージ
    ・2階ホール デスクスペース・完成イメージ
  • ・2階8帖主寝室・完成いイメージ
    ・2階8帖主寝室・完成いイメージ
  • ・北面道路・幅員6.0m・2026年3月末撮影
    ・北面道路・幅員6.0m・2026年3月末撮影
  • 橋本市立紀見小学校 徒歩約16分。車約5分。 1230m
    橋本市立紀見小学校 徒歩約16分。車約5分。 1230m
  • 徒歩約25分。自転車約10分。車約5分。御幸辻駅(南海 高野線)から難波駅(南海 高野線)まで約50分。 1850m
    徒歩約25分。自転車約10分。車約5分。御幸辻駅(南海 高野線)から難波駅(南海 高野線)まで約50分。 1850m
  • みゆき台中公園 徒歩約5分。自転車約2分。滑り台、砂場、シーソー、ブランコあり。ローラー式滑り台があり子供たちに人気! 370m
    みゆき台中公園 徒歩約5分。自転車約2分。滑り台、砂場、シーソー、ブランコあり。ローラー式滑り台があり子供たちに人気! 370m
  • みゆき台東公園 徒歩約4分。自転車約2分。滑り台、うんてい、砂場、ブランコあり。閑散な住宅街にあり、自由に遊べる広いスペースがあります。 310m
    みゆき台東公園 徒歩約4分。自転車約2分。滑り台、うんてい、砂場、ブランコあり。閑散な住宅街にあり、自由に遊べる広いスペースがあります。 310m
  • 橋本市立紀見東中学校 徒歩約48分。自転車約20分。車約10分。 3800m
    橋本市立紀見東中学校 徒歩約48分。自転車約20分。車約10分。 3800m
  • 松源橋本林間店 車約7分。100円ショップseria、薬局サンドラッグが隣接しています。 4410m
    松源橋本林間店 車約7分。100円ショップseria、薬局サンドラッグが隣接しています。 4410m
  • 京奈和自動車道 橋本IC 車約5分。京奈和道経由にて和歌山市まで約55分。大阪市まで約70分。奈良市まで約70分。 3950m
    京奈和自動車道 橋本IC 車約5分。京奈和道経由にて和歌山市まで約55分。大阪市まで約70分。奈良市まで約70分。 3950m
  • パネル工法(2×4工法)
    パネル工法(2×4工法)
  • 標準、断熱材
    標準、断熱材
  • 標準、YKK樹脂サッシ
    標準、YKK樹脂サッシ

周辺地図

地図を表示中...
ストリートビュー未対応エリアです。

物件詳細情報

物件用途 居住用 地目 宅地
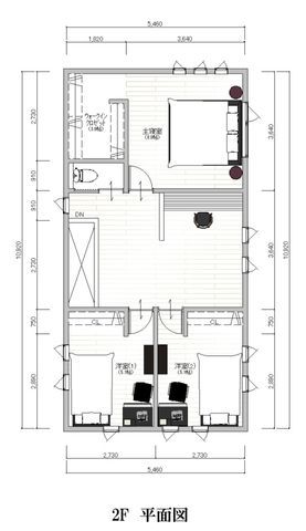
間取り詳細 LDK21畳(1F)、洋5畳(1F)、洋5.1畳(2F)、洋5.1畳(2F)、洋8畳(2F) 都市計画 非線引区域
建物向き 用途地域 第一種低層住居専用地域
土地面積基準 - 接道 公道 南 幅員6m (接面11.6m)
土地権利 所有権 私道面積 -
借地条件 - 道路位置指定 -
地代 - 不適合接道 -
建築確認番号 - セットバック -
現況 空家 国土法届出 不要
引渡時期 相談 取引態様 売主
オープンハウス 日時:2026年5月16日~5月17日  
設備その他 -
特記事項 建築協定有/宅地造成工事規制区域
備考 -
公開日 2026/04/21 広告有効期限 2026/05/22
電話でお問い合わせ
014不動産 丸石木材住宅株式会社 店舗情報
[所在地] 和歌山県橋本市東家5丁目4番1号
[営業時間] 10:00~18:00 定休日:水曜
0120-014-065
携帯電話・PHSもご利用になれます。